One of the typical information items Vulcan would send out would be the “general arrangement” (or assembly, to use the Raymond terminology) of a hammer, or a sub-assembly such as a capblock follower. These were also included in the offshore field service manuals. Sometimes they would feature the specifications of the hammer. They are useful for basic clearance and other dimensions or to understand the basic layout of the machine.
Some of these were put in data format. We feature for download some collections of these as follows:
- Vulcan 020 Offshore Hammer Specification Sheet. Not a general arrangement per se, but a specification sheet (in US and SI units) along with parts of the general arrangement on the back. These were issued in the 1970’s and were very popular for many years.
- Vulcan 040 Offshore Hammer Specification Sheet.
- Vulcan Offshore Hammers
- Auto-Jack Cable Tensioning Device for most Vulcan offshore hammers
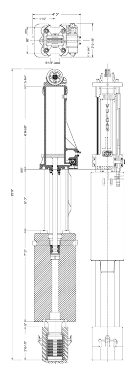
- Vulcan 535 Hammer, 54″ and 80″ Jaws (similar to the 530)
- Vulcan 530/535 Capblock Follower Assembly (80″ Jaws)
- Vulcan 560 Hammer
- Vulcan 5110 Hammer
- Vulcan 5100 Capblock Follower Assembly
- Vulcan/Raymond Hammers
- Vulcan 513 Hammer
- Vulcan 515 Hammer
- Vulcan 517 Hammer
- Vulcan 525 Hammer
- Vulcan/Raymond 60X Hammer, with and without Vari-Cycle II
- Vulcan/Foster Vibratory Hammer. Vulcan manufactured L.B. Foster vibratory hammers during the 1990’s on a “private label” basis. These are the general assemblies for the 1050 and 4200.
Some of our general arrangements are in image format; we present some of them below.
We also have an extensive collection of these (including the specification sheets) in other “traditional formats.” If you would like to contact us about obtaining these, click here. We also have extensive information in our Vulcan Data Manual.


One thought on “General Arrangements and Assemblies”