Energy conservation is an important consideration today in a world where the competition for energy sources is intensified by rising demand. But making best use of fuel isn't new, and both the Vulcanaire Supertherm and the Airmizer hammers were Vulcan's contribution to energy savings. Both of these products were the original idea of Moses Hornstein, … Continue reading Vulcanaire Supertherm, and the Airmizer Hammers
Category: Vulcan: The Offshore Experience
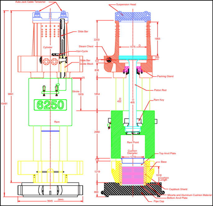
Vulcan 106: the “Switch-Hitter”
Note: the field service manual for the 106 can be found in the vulcanhammer.info Guide Volume 1. Creating excitement in a "need-driven" type of equipment like pile driving equipment isn't easy, especially one with as long of a history as Vulcan's.ย Vulcan tried to do just that with the 106 hammer, a hammer which both technically … Continue reading Vulcan 106: the “Switch-Hitter”
Proposed Hammers During the 1960’s, 1970’s and 1980’s
We looked at the hammers that began the change in Vulcan's product direction during the late 1920's and early 1930's, and we also document the "last hammers" of the 1990's. Here we look at hammers which were proposed during the 1960's, 1970's and 1980's that were never built. One other set of designs that never … Continue reading Proposed Hammers During the 1960’s, 1970’s and 1980’s
Vulcan’s “Last Hammers”
As we noted elsewhere, Vulcan was an innovator from the beginning of the air/steam line in the 1880's until the end of the Illinois corporation and beyond. Unfortunately, from the mid-1990's on, Vulcan was unable to take its ideas and put them into reality. An example of this is the Sea Water Hammer. But there … Continue reading Vulcan’s “Last Hammers”
Vulcan: the Offshore Experience
Everyone has an experience in their life that they count the greatest. Corporations do, too. For Vulcan Iron Works, that experience was its involvement in offshore oil development. Come join us as we take a look at Vulcan's involvement offshore, which follows a fascinating (and very profitable) saga of American commercial history. You can click … Continue reading Vulcan: the Offshore Experience
The Saga Continues
Much of what we have presented about Vulcan's offshore adventure has been done in the past tense. This is a little misleading; Vulcan hammers are still used to install offshore platforms all over the world today, simple, reliable and economical as always. The sun still does not set on working Vulcan equipment. However, it is … Continue reading The Saga Continues
Sea Water Pile Hammer
The concept of using sea water as the motive fluid for an underwater hydraulic hammer is an intriguing one. Doing so has two key advantages: Eliminates the use of hydraulic fluid, which can be environmentally hazardous (depends on the type); and Eliminates the need for a return line, irrespective of whether the pump/power pack is … Continue reading Sea Water Pile Hammer
Vulcan, Underwater and Hydraulic Hammers
Vulcan never developed an underwater hammer of its own for offshore use. Although today use of these hammers for deep water projects is routine, the road to viable offshore hammers was a long one, even for companies better situated than Vulcan to get there. The Ocean Pile Hammer Vulcan's first underwater hammer was the Mariner … Continue reading Vulcan, Underwater and Hydraulic Hammers
Vulcan Offshore Hammers in Action
Vulcan hammers found themselves used literally all over the world; here are a few photos showing them "doing their stuff."
Internal Pile Hammer IPH-16
If you've looked at a conventional Vulcan, Conmaco or Menck air/steam hammer package for offshore use, you've noticed the hammer is surrounded by the leaders, which align the hammer to the pile. But what if the hammer could be self-aligning? In 1968 offshore contractor McDermott Inc. wanted to find out just that, and commissioned Vulcan … Continue reading Internal Pile Hammer IPH-16

