We've been posting some pretty technical stuff lately. While there is a good deal of that here, we're going to use this to illustrate two things: how projectile motion works and why you shouldn't put starter fluid in a diesel hammer. The Situation Let's consider the situation where the contractor brought the rig illustrated below … Continue reading Projectile Motion, or Why You Don’t Put Starter Fluid in a Diesel Hammer
Tag: machine-learning
The Basics of Setting the Cut-Off Point for a Vulcan Single-Acting Hammer
The issue of slide bars, full and short stroking and blow rate have always been central to the proper "certification" and operation of Vulcan hammers. In this post we will take a "bare bones," basic approach to the dynamics of the problem with the most basic automatic hammer of all: a single-acting air/steam hammer, in … Continue reading The Basics of Setting the Cut-Off Point for a Vulcan Single-Acting Hammer
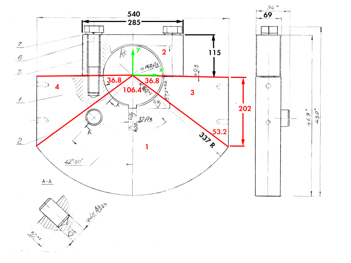
Determining the Eccentric Moment, Rotational Inertia and Pendulum Frequency for a Vibratory Eccentric
In the post Checking the Soviets: Determining the Eccentric Moment, we discussed the process of determining this parameter and more for a vibratory eccentric. The importance of the pendulum frequency--and the way that rotational moment of inertia and mass moment of inertia can easily be related with this kind of configuration--was discussed in Two Papers on … Continue reading Determining the Eccentric Moment, Rotational Inertia and Pendulum Frequency for a Vibratory Eccentric

